Lekino brdo (Voždovac)
Dragačevska, Voždovac
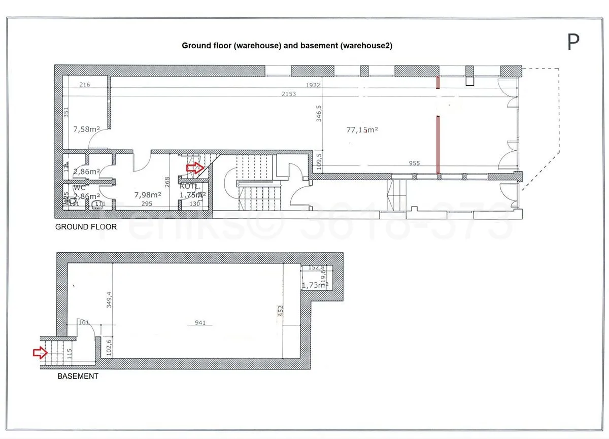
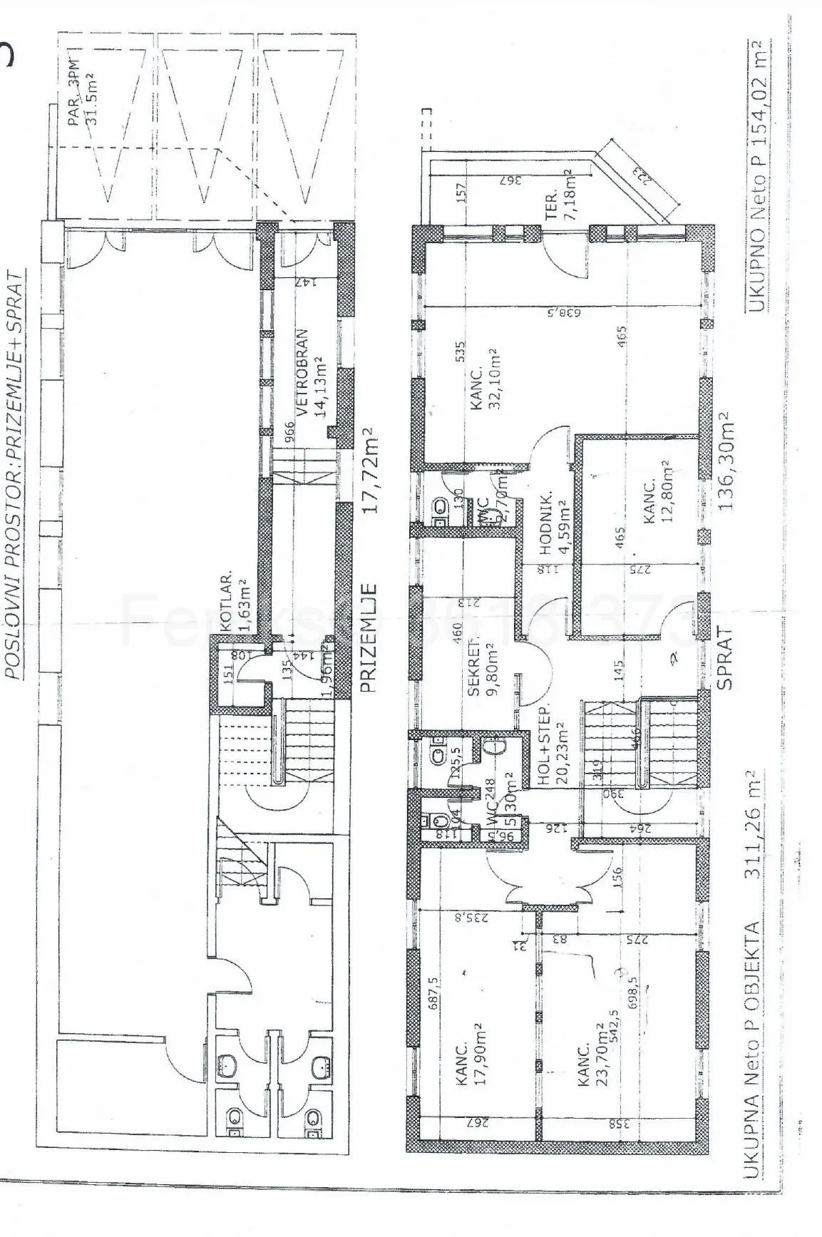
370,00 m²
Struktura 6
547.000 €
Osnovni podaci
Grad:
Beograd
Šira lokacija:
Lekino brdo
Ulica:
Dragačevska
Cena/m²:
1.478,38 €
Kvadratura:
370,00 m²
Struktura:
6
Kupatila:
4
Spratnost:
podrum,prizemlje/1
Grejanje:
Etažno grejanje
Stanje:
Izvorno
✅ Uknjiženo
terasa
Opis
Odličan poslovni prostor koji se sastoji od podruma od 70m2 u kojem je magacin. Prizemlja prijemno odeljenje, servisa i mokrog čvora, na spratu su 4-5 kanacelarije, kuhinja i mokri čvor. Sve je izuzetno dobrog kvaliteta i uknjiženo. Prodaje se namešteno, pogodno za office , servis, labaratoriju, ordinaciju.
Ima ispred zgarde parking mesto.
Kupac plaća agencijsku proviziju.